Vernon Road, Worsbrough, Barnsley

Sold Subject to Contract
Offers in the Region of £190,000

3 1

Occupying a large plot is this beautifully refurbished, three bedroom, family home, finished to the highest of standards throughout. The property has been modernised throughout over recent years by our vendor client and now boasts a beautifully fitted dining kitchen with shaker style units, lounge with wood burning stove, modern bathroom suite and off road parking for several vehicles. Close to the Trans-Pennine trail and within easy reach M1 (Junction 36), the property would be ideal for those commuting to neighbouring cities.

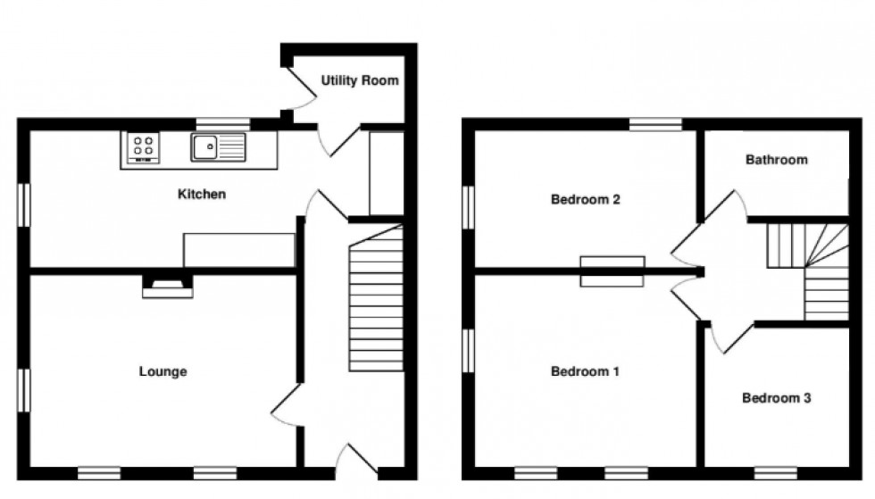
The accommodation comprises:

GROUND FLOOR

A double glazed composite door opens into the

ENTRANCE HALL having a ceramic tiled floor, understairs storage cupboard, central heating radiator and staircase to the first floor

LOUNGE 15’6’’ X 11’2’’ a dual aspect room having three UPVC double glazed windows, two central heating radiators and a feature fireplace with wood burning stove, tiled hearth and oak mantle

KITCHEN 22’2’’ X 8’4’’ beautifully fitted with a range of shaker style wall and base units in sage green, complimented by metro tiled splashbacks and wood effect block work surfaces. There is a six ring stainless steel gas hob with cooker hood above, pot 1½ ceramic bowl and drainer, Bosch microwave, oven and grill, dishwasher, two UPVC double glazed windows, central heating radiator, ceramic tiling to the floor and recess for an American style fridge freezer. A door leads into the

REAR PORCH 6’3’’ X 4’2’’ being fully tiled in ceramic tiles, with UPVC double glazed door leading out to the rear garden and having plumbing and space for an automatic washing machine

FIRST FLOOR

LANDING with access to

BEDROOM ONE 13’2’’ X 11’3’’ a dual aspect room having three double glazed windows, central heating radiator and wooden panelling to the wall

BEDROOM TWO 13’7’’ X 8’6’’ a dual aspect room having two UPVC double glazed windows and a central heating radiator

BEDROOM THREE 8’7’’ X 8’6’’ having a UPVC double glazed window, central heating radiator and a range of fitted hanging wardrobes in matt grey

FAMILY BATHROOM 8’5’’ X 5’9’’ having a three piece suite in white comprising of a low flush WC, pedestal wash hand basin and panelled bath with rainfall thermostatic shower above and ceramic tiling. There is wooden panelling to the walls, a UPVC double glazed window with obscured glass, ceramic tiling to the floor and a central heating radiator

OUTSIDE

To the front of the property there is a small buffer garden with privet hedging. To the side, there is a large tarmacked driveway which provides off-road parking for a number of vehicles. To the rear of the property there is a fully enclosed lawned garden with resin patio area, timber decked pergola and established borders.

COUNCIL TAX BAND - A

TENURE - FREEHOLD

IMPORTANT NOTICE

These particulars do not constitute any part of an offer or contract.  All statements contained in these particulars are given in good faith but are made without responsibility on the part of Wilbys or the vendors or lessors.  Any intending purchaser or lessee must satisfy themselves by inspection or otherwise as to the correctness of each of the statements contained in these Particulars.

All rents and prices quoted are exclusive of VAT, unless otherwise stated.    

All measurements, areas and distances quoted are approximate only.

Information provided in respect of planning and rating matters has, unless stated, been obtained by way of verbal enquiry only.  Interested parties are therefore recommended to seek their own independent verification on such matters from the appropriate Local Authority.

Location and site plans if provided, are for identification and directional purposes only.  The area surrounding the subject property may have changed since the plan was produced.

Wilbys have not tested any apparatus, equipment fittings or services and so cannot verify they are in working order.  Prospective purchasers are advised to obtain verification on such matters via their surveyor or solicitor.

The boundaries, ownership and tenure of this property have not been checked against the Title Deeds for any discrepancies or rights of way, if any.  Prospective purchasers are advised to check these matters with their solicitor prior to entering into any contracts.

PLEASE NOTE: These property particulars have not been verified by the seller and as such Wilbys Ltd cannot be held responsible for any discrepancies therein.

  • MODERNISED THROUGHOUT
  • OFF ROAD PARKING FOR A NUMBER OF VEHICLES
  • LARGE GARDEN
  • FULLY FITTED KITCHEN
  • NO UPPER VENDOR CHAIN
Floorplan for Vernon Road, Worsbrough, Barnsley
Similar Properties

Request a valuation

Find out how much your property is worth