Wheatcrofts, Barnsley

Sold Subject to Contract
Offers in the Region of £250,000

4 3

A four bedroom town house situated on this now well established Strata Homes development, offering spacious and versatile accommodation arranged over four floors.

Ideally located for modern family living, the property enjoys excellent access to Barnsley town centre, the M1 motorway, and the highly regarded Horizon Community College, making it perfect for commuters and families alike.

Inside, the home features four generously sized bedrooms, including two with en‑suite facilities, providing comfort and convenience for larger households or visiting guests. The multi‑level layout offers flexible living spaces, allowing you to adapt rooms to suit your lifestyle whether that’s a home office, playroom, or additional lounge.

With its contemporary design, great transport links, and sought‑after position, this property is an ideal choice for buyers looking for style, space, and location in one.

The accommodation comprises:

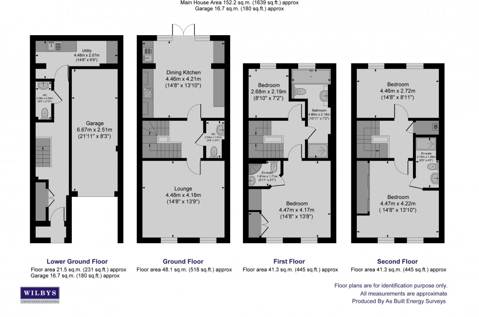
GROUND FLOOR

A double glazed door opens into the

ENTRANCE HALL with tile effect vinyl flooring, large built in cloaks cupboard, two central heating radiators and a door leading to the integral garage

WC 6’7’’ X 2’8’’ having a low flush WC, pedestal wash hand basin and ceramic tiled splashback. There is a central heating radiator and tile effect vinyl flooring

UTILITY 14’7’’ X 7’ having a base unit with rolled edge work surface, stainless steel sink with mixer tap, plumbing and space for an automatic washing machine, space for a secondary appliance, there is a shelving unit, tile effect vinyl flooring and a central heating radiator

From the entrance hall, a staircase rises to the

FIRST FLOOR

LANDING having a central heating radiator and access to the

LOUNGE 14’7’’ X 13’8’’ having two UPVC double glazed windows and two central heating radiators

DINING KITCHEN 14’7’’ X 13’9’’ fitted with a range of maple effect wall and base units complimented by rolled edge work surfaces, there is a stainless steel oven and grill, a four ring Neff gas hob with accompanying cooker hood above, recess for a fridge freezer, plumbing and space for a dishwasher, stainless steel sink with drainer, ceramic tiled splashbacks, a central heating radiator, tile effect laminate flooring and a set of UPVC double glazed French doors open out to the rear garden

WC 6’8’’ X 3’2’’ having a low flush WC, pedestal wash hand basin with ceramic tiled splashback, tile effect vinyl flooring and a central heating radiator

From the first floor landing, a staircase rises to the

SECOND FLOOR

LANDING having a central heating radiator and access to the

BEDROOM TWO 14’8’’ X 13’9’’ a front facing room having two UPVC double glazed windows, two central heating radiators, triple beechwood effect hanging wardrobe and tallboy

EN SUITE 6’2’’ X 5’8’’ having a three piece suite comprising of a low flush WC, pedestal wash hand basin with ceramic tiled splashback and a fully enclosed corner shower cubicle with thermostatic shower. There is wood effect vinyl flooring and a central heating radiator

BEDROOM FOUR 10’5’’ X 8’8’’ having a UPVC double glazed window and a central heating radiator

FAMILY BATHROOM 16’ to the widest point X 7’2’’ having a four piece suite comprising of a low flush WC, wall hung wash hand basin with mixer tap, panelled spa bath and a fully enclosed shower cubicle with thermostatic shower. There is complimentary tiling to the walls, a UPVC double glazed window with obscured glass and a central heating radiator

From the second floor landing, a staircase rises to the

THIRD FLOOR

LANDING having a central heating radiator, built in storage cupboard housing the Worcester Bosh combination central heating boiler and there is a hatch providing access to the loft

MASTER BEDROOM 14’8’’ X 14’2’’ having two UPVC double glazed windows and a range of fitted bedroom furniture with sliding robe doors

EN SUITE 9’2’’ X 4’ having a low flush WC, pedestal wash hand basin and a fully enclosed shower cubicle with thermostatic shower. There is tile effect vinyl flooring and a central heating radiator

BEDROOM THREE 14’6’’ X 8’9’’ having two UPVC double glazed windows and two central heating radiators

OUTSIDE

To the front of the property there is a tarmacked driveway providing off road parking and access to the INTEGRAL GARAGE 22’7’’ X 8’3’’ having power and light supply, with up and over garage door. To the rear of the property, there is a fully enclosed lawned garden with paved patio area and established borders.

COUNCIL TAX BAND - C

TENURE - FREEHOLD

IMPORTANT NOTICE

These particulars do not constitute any part of an offer or contract.  All statements contained in these particulars are given in good faith but are made without responsibility on the part of Wilbys or the vendors or lessors.  Any intending purchaser or lessee must satisfy themselves by inspection or otherwise as to the correctness of each of the statements contained in these Particulars.

All rents and prices quoted are exclusive of VAT, unless otherwise stated.    

All measurements, areas and distances quoted are approximate only.

Information provided in respect of planning and rating matters has, unless stated, been obtained by way of verbal enquiry only.  Interested parties are therefore recommended to seek their own independent verification on such matters from the appropriate Local Authority.

Location and site plans if provided, are for identification and directional purposes only.  The area surrounding the subject property may have changed since the plan was produced.

Wilbys have not tested any apparatus, equipment fittings or services and so cannot verify they are in working order.  Prospective purchasers are advised to obtain verification on such matters via their surveyor or solicitor.

The boundaries, ownership and tenure of this property have not been checked against the Title Deeds for any discrepancies or rights of way, if any.  Prospective purchasers are advised to check these matters with their solicitor prior to entering into any contracts.

PLEASE NOTE: These property particulars have not been verified by the seller and as such Wilbys Ltd cannot be held responsible for any discrepancies therein.

 

  • FOUR GOOD SIZED BEDROOMS
  • TWO WITH EN SUITES
  • WELL ESTABLISHED DEVELOPMENT
  • NO UPPER VENDOR CHAIN
Floorplan for Wheatcrofts, Barnsley
Similar Properties

Request a valuation

Find out how much your property is worth