Cawthorne, Barnsley

Under Offer
Offers in the Region of £495,000

3 2

Occupying a large plot of approximately 0.6 of an acre, is this attractive 19thcentury, three bedroom cottage, offering a wealth of potential for development of the existing cottage and possible future potential for redevelopment of the plot (subject to the necessary planning consents).

Planning permission was granted in 2022 for the erection of a two storey rear extension, which if complete, would result in a stunning five bedroom family home. This planning permission can be viewed on Barnsley MBC Planning Portal website.

The cottage is just a short distance from the many attractions that Cawthorne has to offer including the world renowned Cannon Hall Farm and country park and offers easy access to the M1 Motorway.

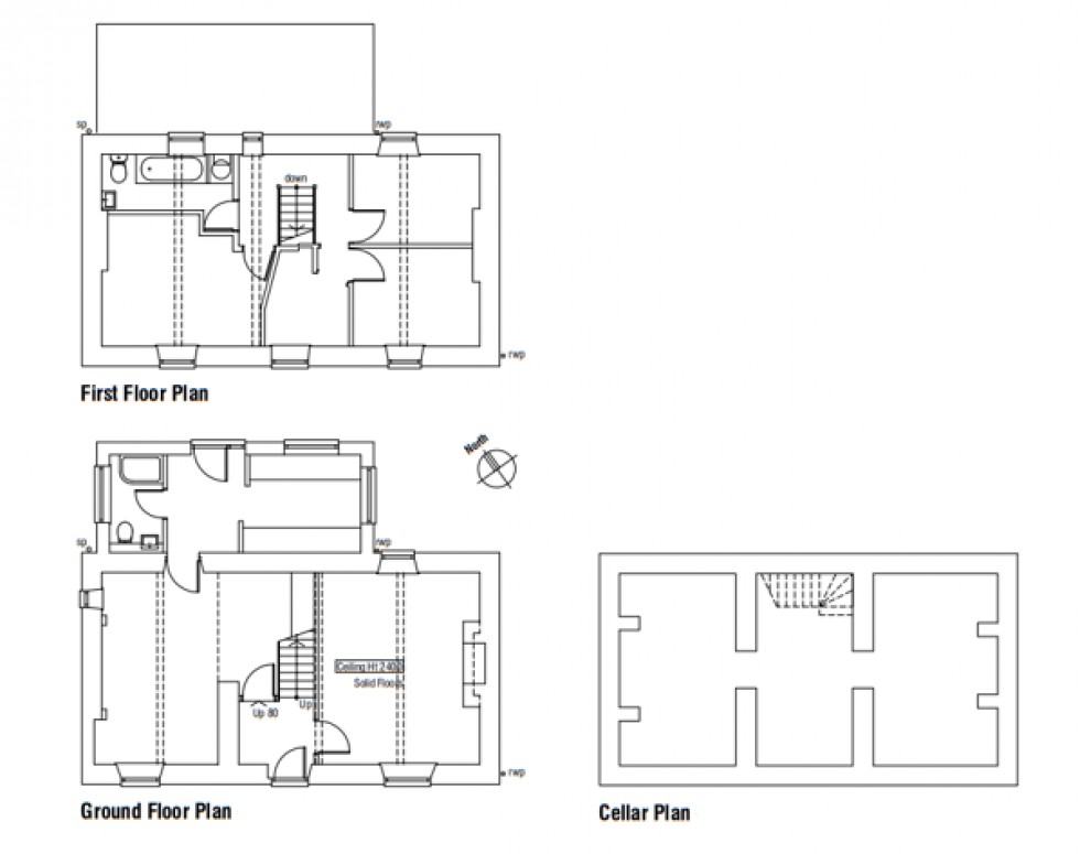
The accommodation comprises:

GROUND FLOOR

UPVC double glazed entrance door gives access into the

ENTRANCE HALL with central heating radiator and staircase rising to the first floor

LOUNGE 15’ X 12’1’’ a dual aspect room having two UPVC double glazed windows, two central heating radiators and a feature stone fireplace with exposed stonework to the walls, there is also an electric wall heater

DINING ROOM 15’ X 15’ to the widest point,having two UPVC double glazed windows, two central heating radiators, wall hung electric heater, understairs storage and wooden panelling to the walls

REAR LOBBY 8’ X 5’1’’ having a central heating radiator, ceramic tiling to the floor, a UPVC double glazed door to the rear garden and a cladded ceiling with inset low voltage ceiling spotlights

DOWNSTAIRS SHOWER ROOM 7’ X 4’ having a low flush WC, vanity wash hand basin and a corner shower cubicle with Mira electric shower. There is aqua boarding to the ceiling, low voltage ceiling spotlights, UPVC double glazed window and a central heating radiator

KITCHEN 9’ X 7’ having a range of medium oak wall and base units complimented by rolled edge work surfaces and ceramic tiled splashbacks, there is a stainless steel Beko oven and grill, four ring ceramic hob with stainless steel cooker hood above, stainless steel sink, plumbing and space for an automatic washing machine and an integrated dishwasher. The kitchen has two UPVC double glazed windows, a cladded ceiling with low voltage spotlights and wooden flooring

From the entrance hall, the staircase rises to the

FIRST FLOOR

LANDING having a central heating radiator and UPVC double glazed window

BEDROOM ONE 13’ X 10’ a front facing room having a UPVC double glazed window, central heating radiator, wall hung electric heater and hatch providing access to the loft

BEDROOM TWO 10’ X 7’ having a UPVC double glazed window, central heating radiator and a wall hung electric heater

BEDROOM THREE 10’ X 7’ having a UPVC double glazed window, central heating radiator and a wall hung electric heater

BATHROOM 11’ X 6’ to the widest point, having a three piece suite in white comprising of a low flush WC, pedestal wash hand basin and panelled bath. There is half ceramic tiling to the walls, a chrome ladder heated towel rail, UPVC double glazed window with obscured glass and a built in storage cupboard housing the Idela Classic gas central heating boiler and hot water cylinder

STUDY 7’ to the widest point X 6’ having a UPVC double glazed window and central heating radiator

OUTSIDE

To the front of the property there is a walled lawned garden with established shrubs. A large driveway extends to the rear which provides off-road parking for a number of vehicles. To the rear, there is a larger than average garden well stocked with various shrubs, trees and evergreens. The plot could be suitable for development potential, subject to planning.

COUNCIL TAX BAND - D

TENURE - FREEHOLD

IMPORTANT NOTICE

These particulars do not constitute any part of an offer or contract.  All statements contained in these particulars are given in good faith but are made without responsibility on the part of Wilbys or the vendors or lessors.  Any intending purchaser or lessee must satisfy themselves by inspection or otherwise as to the correctness of each of the statements contained in these Particulars.

All rents and prices quoted are exclusive of VAT, unless otherwise stated.    

All measurements, areas and distances quoted are approximate only.

Information provided in respect of planning and rating matters has, unless stated, been obtained by way of verbal enquiry only.  Interested parties are therefore recommended to seek their own independent verification on such matters from the appropriate Local Authority.

Location and site plans if provided, are for identification and directional purposes only.  The area surrounding the subject property may have changed since the plan was produced.

Wilbys have not tested any apparatus, equipment fittings or services and so cannot verify they are in working order.  Prospective purchasers are advised to obtain verification on such matters via their surveyor or solicitor.

The boundaries, ownership and tenure of this property have not been checked against the Title Deeds for any discrepancies or rights of way, if any.  Prospective purchasers are advised to check these matters with their solicitor prior to entering into any contracts.

PLEASE NOTE: These property particulars have not been verified by the seller and as such Wilbys Ltd cannot be held responsible for any discrepancies therein.

  • LARGE PLOT (0.6 ACRE)
  • FUTURE PLANNING POTENTIAL
  • CLOSE TO MAIN BUS ROUTES
  • CLOSE TO M1
  • SOUGHT AFTER LOCATION
Floorplan for Cawthorne, Barnsley
Similar Property

Request a valuation

Find out how much your property is worth